Products
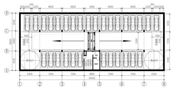
運行原理及特點 采用在同一層上用搬運臺車或起重機平面移動,或使載車板平面橫移實現存取停放車輛,亦可用搬運臺車和升降機配合實現多層平面移動存取停放車輛。此種類型的設備大多為多層平面移動類,這種車庫可以建
400-822-8286
13707400505
運行原理及特點
采用在同一層上用搬運臺車或起重機平面移動,或使載車板平面橫移實現存取停放車輛,亦可用搬運臺車和升降機配合實現多層平面移動存取停放車輛。此種類型的設備大多為多層平面移動類,這種車庫可以建成大型化、自動化的車庫、容車密度大、存(取)車快捷,適宜建在大型住宅周圍的地下,對機場、車站、繁華商業(yè)中心區(qū)、體育館、辦公樓等區(qū)域也適合。尤其是巷道長度長、層數不多的地下大容量存車庫,用這種設備的技術經濟性較好。


COPYRIGHT ? hnyuanrui.com ALL RIGHTS RESERVED. 湖南遠瑞建筑機械工程有限公司 版權所有
湘ICP備16017744號